บันทึกงานโดย นางสาวสินีนาฎ ทนันชัย เจ้าหน้าที่บริหารงานทั่วไป

ตรวจสอบแล้ว

ID: 3513 นางสาวสินีนาฎ ทนันชัย อัพเดทสถานะเป็นตรวจสอบแล้ว
เมื่อเวลา: 2026-04-07 17:03:11.

ความคืบหน้า: ปิดงานตามที่เลือก

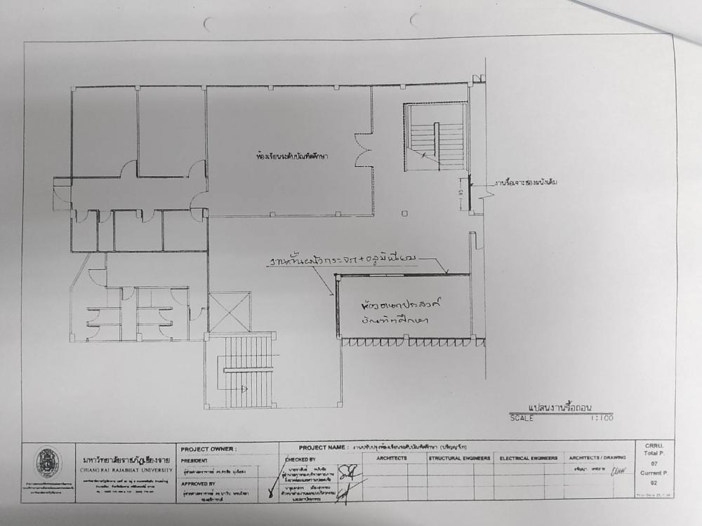
ตรวจสอบและออกแบบอาคาร (ชั้น 3) อาคารคณะรัฐศาสตร์ฯ

คณะรัฐศาสตร์ฯ  ตรวจสอบและออกแบบอาคาร (ชั้น 3) อาคารคณะรัฐศาสตร์ฯ บริเวณโถงชั้น 3 และ ห้องเรียน 2031

ประเภทงาน: งานซ่อมแซมและปรับปรุง ผู้ประสาน: นางสาวจารุวรรณ คำโม๊ะ 0817859323 รับแจ้ง: 9 ธันวาคม 2568
เอกสารแนบ

ติดตามสถานะการทำงาน

ตรวจสอบแล้ว นางสาวสินีนาฎ ทนันชัย 7 เมษายน 2569 17:03:11 นางสาวสินีนาฎ ทนันชัย อัพเดทเป็นตรวจสอบแล้ว ปิดงานตามที่เลือก
เสร็จสิ้น นายเสกสรร เมืองสุวรรณ 18 ธันวาคม 2568 15:34:00 นายเสกสรร เมืองสุวรรณ อัพเดทเป็นเสร็จสิ้น
ปฏิบัติงาน นายเสกสรร เมืองสุวรรณ 18 ธันวาคม 2568 09:22:00 นายเสกสรร เมืองสุวรรณ อัพเดทเป็นปฏิบัติงาน
รอดำเนินการ นางสาวสินีนาฎ ทนันชัย 9 ธันวาคม 2568 13:53:08 นางสาวสินีนาฎ ทนันชัย อัพเดทเป็นรอดำเนินการ
รูปประกอบ
-- ยังไม่มีรูปประกอบ --