บันทึกงานโดย นายเสกสรร เมืองสุวรรณ
สถาปนิก ชำนาญการ
ตรวจสอบแล้ว
ID: 4425
นางสาวสินีนาฎ ทนันชัย อัพเดทสถานะเป็นตรวจสอบแล้ว
เมื่อเวลา: 2026-04-07 17:03:11.
ความคืบหน้า: ปิดงานตามที่เลือก
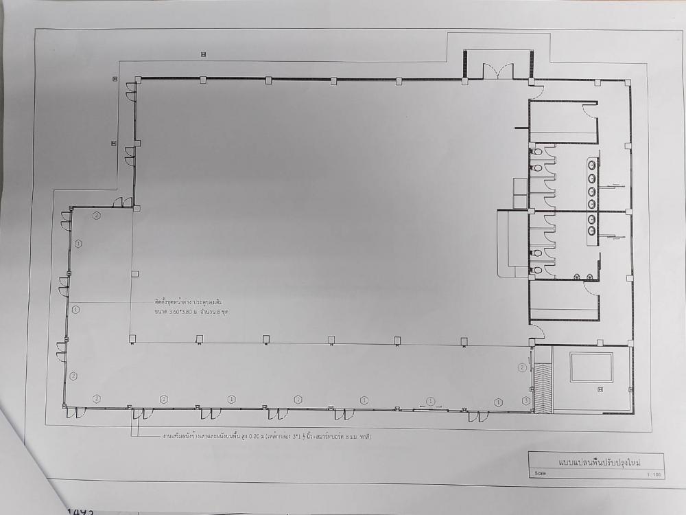
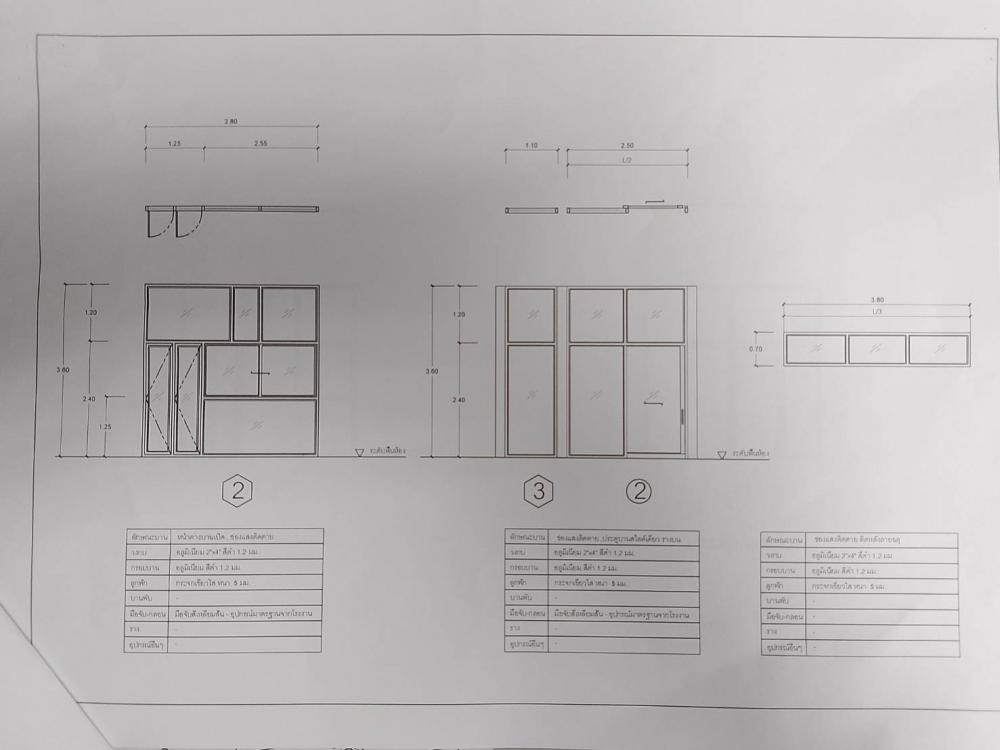
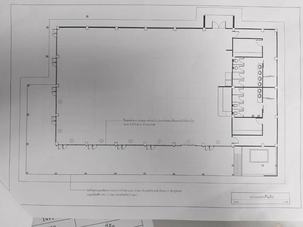
ตรวจสอบและประมาณราคาอาคาร CRRU HYBRID FITNESS
กองบริหารกายภาพฯ
ตรวจสอบแบบ
ประเภทงาน: งานซ่อมแซมและปรับปรุง
ผู้ประสาน:
รับแจ้ง: 6 มีนาคม 2569
เอกสารแนบ
ติดตามสถานะการทำงาน
ตรวจสอบแล้ว
นางสาวสินีนาฎ ทนันชัย
7 เมษายน 2569 17:03:11 นางสาวสินีนาฎ ทนันชัย อัพเดทเป็นตรวจสอบแล้ว ปิดงานตามที่เลือก
เสร็จสิ้น
นายเสกสรร เมืองสุวรรณ
10 มีนาคม 2569 10:54:00 นายเสกสรร เมืองสุวรรณ อัพเดทเป็นเสร็จสิ้น
ปฏิบัติงาน
นายเสกสรร เมืองสุวรรณ
6 มีนาคม 2569 15:34:00 นายเสกสรร เมืองสุวรรณ อัพเดทเป็นปฏิบัติงาน
รอดำเนินการ
นายเสกสรร เมืองสุวรรณ
6 มีนาคม 2569 15:33:40 นายเสกสรร เมืองสุวรรณ อัพเดทเป็นรอดำเนินการ
เจ้าหน้าที่ปฏิบัติงาน(1คน)
นายเสกสรร เมืองสุวรรณ
สถาปนิก ชำนาญการ
รูปประกอบ
-- ยังไม่มีรูปประกอบ --